HIRAYA施工事例:平屋のご紹介
thinks が提案する
平屋 Design
PICK UP
#8117
子供の成長を見守る家
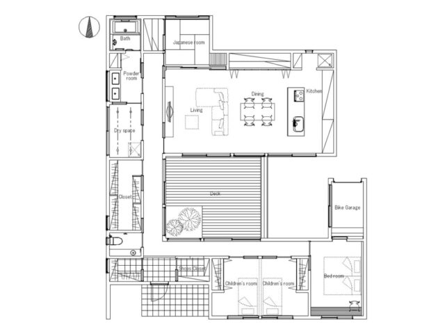
延床:140.98㎡(42.64坪)
間取:3LDK
場所:伊勢崎市
間取:3LDK
場所:伊勢崎市
住宅街の一角にシャープなファサードの外観が佇む。
ライトアップによる陰影は周囲にも癒しをもたらす。
家に求めたのは、子どもがのびのびと遊べる環境と家族の気配が感じられる工夫、効率的な生活動線。
室内と繋がるテラスには、セランガンバツ材を使用。貼り方向をリビングと揃え、室内の延長のように演出。
夏は日よけタープを張り、プールやBBQを家族で楽しんでいる。
料理は奥様の趣味。家族や友人と会話をしながら料理ができるよう、アイランドキッチンを製作。
トーンを抑え落ち着いた印象のLDKに対し、白を基調にした明るい水まわりを計画。製作の洗面化粧台にはボウルを二つ並べ、混雑しがちな朝の支度をスムーズに。
ご主人念願のバイクガレージも実現。寝室とガレージを繋げ、外に出なくても出入りが可能な間取りとなっている。大好きなバイクを寝室から眺めた時に美しく映るよう、照明計画にもこだわった。
かけがえのない日常の瞬間を逃さないよう、どこにいても家族の笑い声が届く空間をつくった。快適に子育てができる家は、皆が憧れる。
thinks club
life style design membership
取扱製品の割引クーポンや最新のイベント情報を配信。
オーナー様はもちろん、これから家づくりを検討される方もご入会いただけます。


